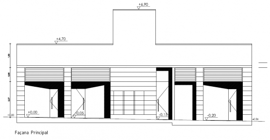
Last January 19th we started a new project in the center of Ripollet, on C/Padró, 53-55. It consists of the demolition of existing premises and the construction of new premises for commercial use. They will measure 250m2. It is expected that the works will last 5 months. The project is led by Jordi Morato as Manager and Rafael Perez as Foreman. This project has been designed by Xavier Canals Uñó, from the studio Canals Arquitectes. In the pictures you can see the future aspect of the facade and the current state of the works.