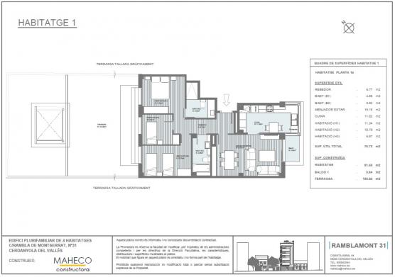
Within some weeks we will start the commercialization and construction of a building of 4 apartments, parking spaces and storage rooms on Rambla Montserrat, 31 in Cerdanyola del Vallès. They are all 3-bedroom and 2-bathroom apartments, they have the same distribution and an area of 91.5m2. The apartment on the first floor has a 133m2 back yard. More information calling us at 935942044.

